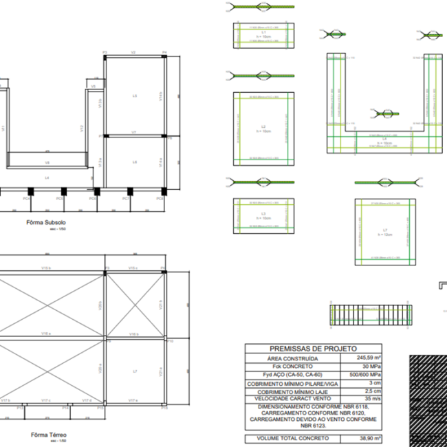
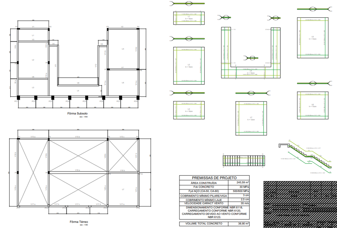
Casa de alto padrão de dois pavimentos e área total de 246 m² em condomínio de Brasília, Distrito Federal. O projeto arquitetônico previa grandes vãos e lajes em balanço. A solução estrutural foi pensada respeitando a arquitetura proposta. Destaque para o pé direito duplo e a escada central.
Tipo estrutura: concreto armado
Área edificação: 246 m²
Número de pavimentos: 2
Ano: 2021




