Informações de Contato

Interessado em trabalhar com profissionais sérios e comprometidos com o seu projeto ?

Entre em contato.

icon_widget_image São Paulo, SP - BRASIL icon_widget_image +55 11 96202-3939 icon_widget_image contato@racioenganharia.com.br

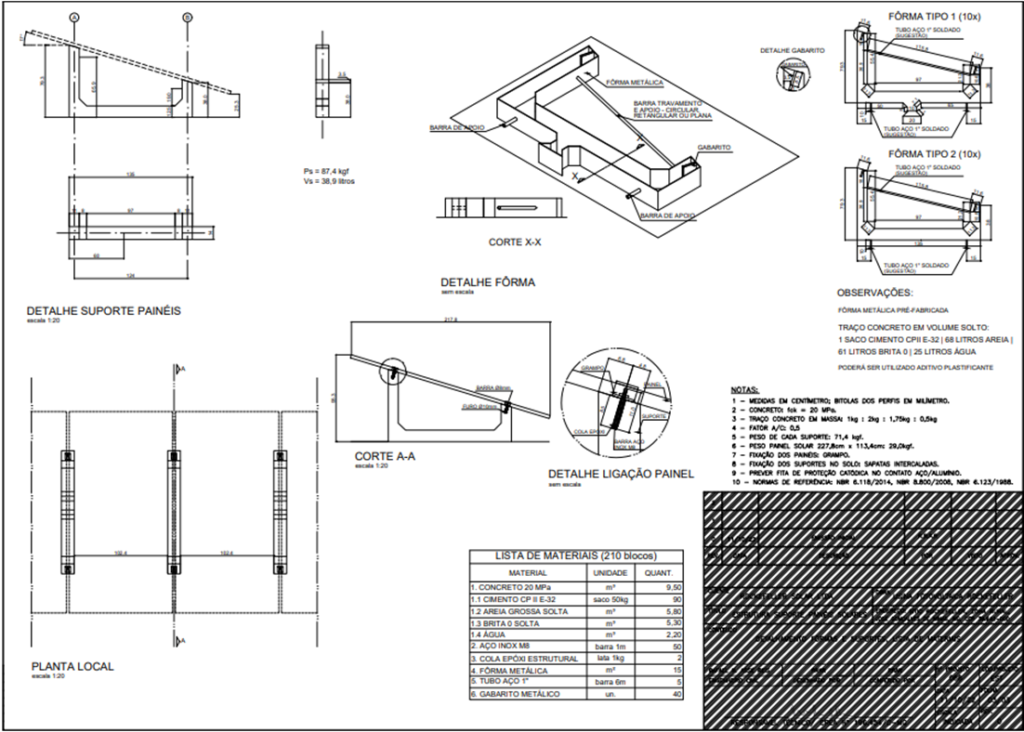
Suporte painéis fotovoltaicos

Bases de suporte em concreto armado para painéis fotovoltaicos. Usina fotovoltaica localizada no município de José Gonçalves de Minas, Minas Gerais, com área total de aproximadamente 1.000 metros quadrados. Foram projetados ao todo 210 suportes iguais.

O principal esforço a ser considerado foi o vento, devido à grande superfície exposta, sobretudo quando da possibilidade de arranque dos suportes.

Foi necessário prever esperas para encaixe dos painéis e o detalhamento das formas metálicas reutilizáveis.

Tipo estrutura: concreto armado

Área: 1.000 m²

Velocidade característica do vento: 23,1 m/s

Ano: 2022

×